Детали проекта
Здание овощехранилища, расположенное по адресу: г. Владимир, ул. Чайковского, д. 3.
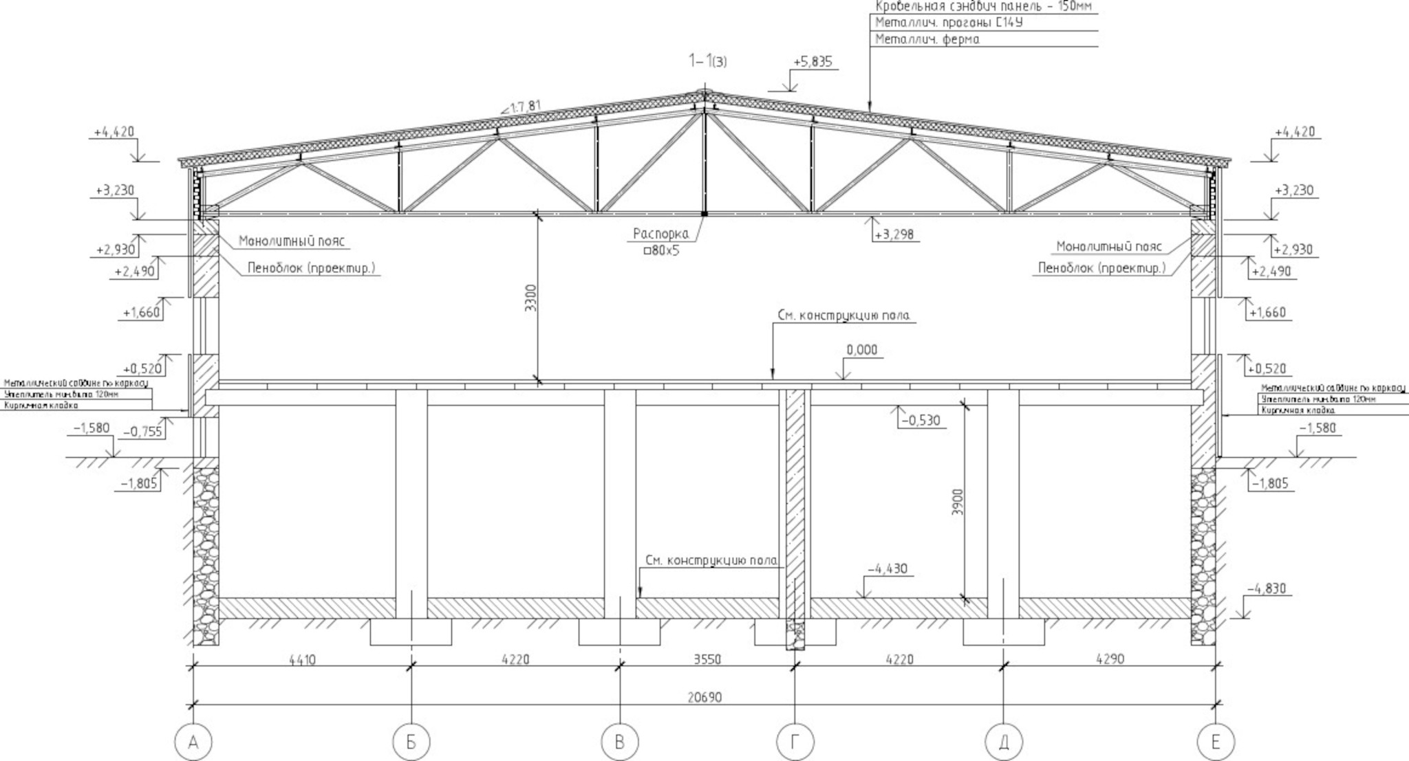
Описание объекта: Здание овощехранилища представляет собой конструкцию прямоугольной формы с размерами в плане в осях 39,78х20,69 м.
Общая площадь объекта:
- до реконструкции – 1489,3 м2;
- после реконструкции – 1498,71м2.
Цель работ:
Разработать проект реконструкции здания овощехранилища под складской терминал.
Результат работ:
Проект реконструкции содержит следующие разделы проектной документации:
- Раздел 1 «Пояснительная записка»;
- Раздел 2 «Схема планировочной организации земельного участка»;
- Раздел 3 «Архитектурные решения»;
- Раздел 6 «Проект организации строительства». Перечень работ при реконструкции здания:
- усиление сущ. кирпичных колонн в подвале здания;
- устройство монолитного перекрытия в осях «1-2»;
- устройство центральной лестницы в осях «Е-Д» и «1-2»;
- устройство метал. навеса над главным входом;
- устройство входного крыльца в осях «В-Е» по оси «8» — металлический каркас с облицовкой стеновыми сэндвич панелями;
- сущ. деревянная крыша демонтируется;
- увеличение высоты стен пеноблоками;
- устройство металлического покрытия из ферм;
- устройство кровли из сэндвич панелей;
- облицовка фасада металлическим сайдингом с утеплением наружных стен.
- перепланировка помещений подвала и первого этажа;
- устройство проема для грузового подъемника;
- замена оконных и дверных блоков;
- внутренние отделочные работы;
- благоустройство близлежащей территории.


















